LOCATION
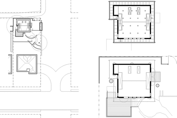
Mick and Mary Rothbart’s home sits high on the southeastern slope of College Hill in Eugene . Mick’s woodshop sits between two large oak trees on a shelf of land at the top back of their property. An alley bordering the upper western edge of the property provides access to the existing parking area, which occupies the northern half of the shelf.

ORIENTATION
The shop itself is small, approximately 22 feet square, with an unobstructed floor plan to maximize work area and layout flexibility. The room is clear-spanned by scissor trusses running east-west, creating a vaulted interior ceiling and a gabled roof form that parallels the site contours. The adjacent 13 by 17 foot work deck is positioned at the southeast corner of the shop to work with the existing garden below; the deck’s extension beyond the edge of the shop provides upslope views of scattered trees and the crest of the hill.

ORGANIZATION
Conventional materials and methods were used in the construction of the shop to contain costs and to be sensitive to the site, and to its Northwest context. The shop and deck rest on pier footings to protect the root systems of the two large oak trees that share the site. The exterior form is kept simple, emphasizing the primary elements of roof and wall.