LOCATION
WILD DUCK MICROBREWERY
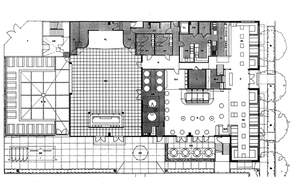
The Wild Duck Microbrewery is a restaurant, bar and performance hall facility occupying a quarter block on Sixth Street, the major westbound arterial through downtown Eugene. The project consists of remodeling an existing tilt-up concrete slab warehouse building and adding space across its Sixth Street front. The front addition establishes a new facade with a street entry, generous windows and an edge of booths creating an active, inviting public face. This addition extends beyond the west edge of the existing building, sheltering a terrace which contains the main entry to the bar and performance hall as well as an outdoor seating court with a stair leading to a south-facing roof terrace.

ORIENTATION
Within the large existing warehouse volume, a new two story internal enclosure houses the microbrewery, kitchen, stage and other support functions. The arrangement of this core defines and serves the remaining large volumes of the public spaces. The performance hall is a separate space entirely with its own entry from the west terrace.

ORGANIZATION